Park Inn Hotel – World Trade Center Constanta, Romania
Designed while working at Architectura Group Miami - Ioana Chinan
Designed while working at Architectura Group Miami - Ioana Chinan
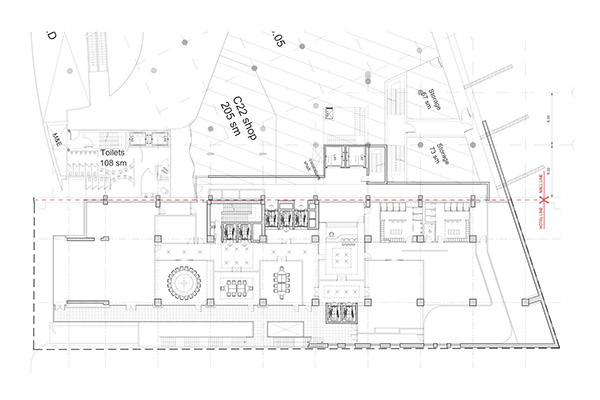
This project represented a major hospitality milestone within the northern segment of the World Trade Center development in Constanta, Romania — a mixed-use complex along the Black Sea coast that includes commercial centers, office towers, cultural venues, and a four-star hotel. In collaboration with the Radisson Hotel Group, Architectura Group Miami (AGM) was commissioned to reimagine the hotel component in alignment with the Park Inn brand’s international standards.
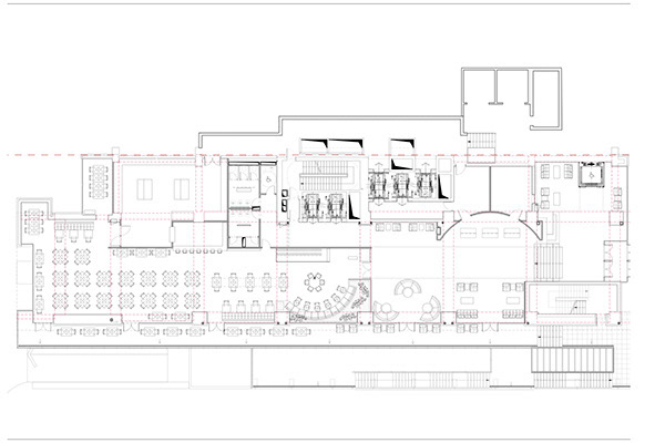
AGM led a comprehensive architectural and interior redesign, including the transformation of the façade, structural reconfiguration for 185 guest rooms, and a new main entrance that elevated both circulation and visual identity. The program expanded to include a full-service restaurant, bar and lounge, meeting and banquet facilities, and a fitness and spa center — all designed to enhance the guest experience while expressing Radisson’s brand character.
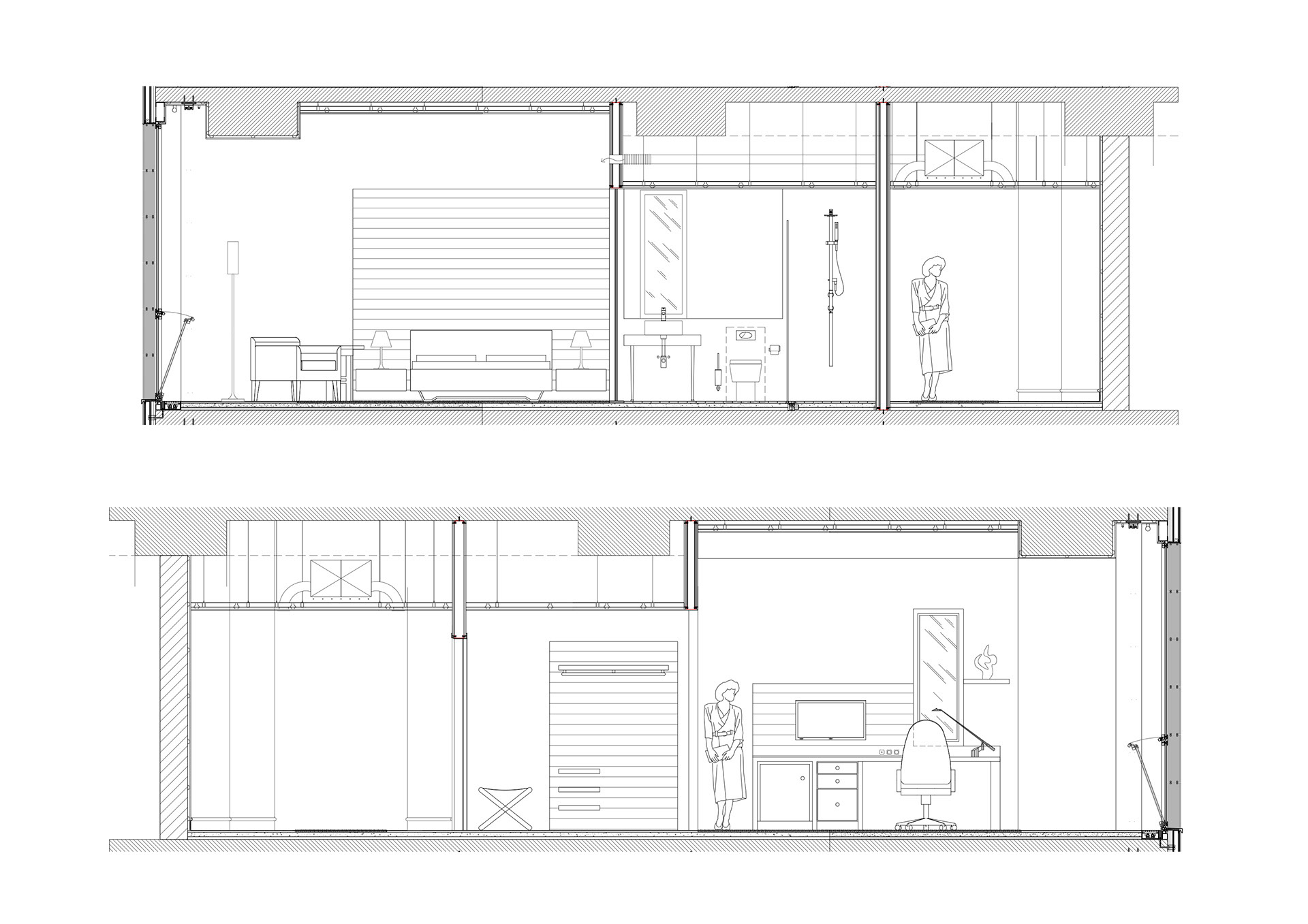
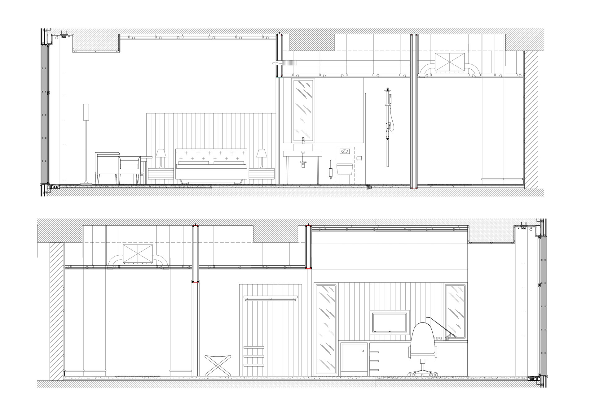
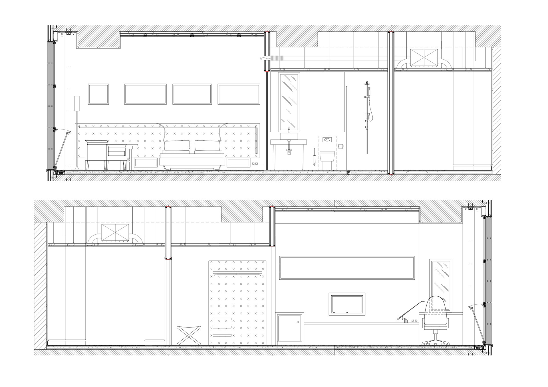
As part of the design team, Ioana Chinan contributed to the review and optimization of guest room and bathroom layouts through detailed spatial studies and cross-sectional analyses. She conceptualized the interiors for the all-day restaurant and hotel bar, balancing brand consistency with operational functionality and ambiance. Ioana also specified plumbing fixtures, lighting, and HVAC components for the guest rooms to ensure seamless technical integration, and selected interior finishes and furniture packages that reflected Radisson’s aesthetic while addressing the comfort and expectations of international travelers.